mobile menu toggle Pradžia
Gestų kalba Lengvai suprantama kalba
LT

Statinių projektinių pasiūlymų viešinimas

Projekto pavadinimas
 
Statinių statybos vieta
 
Paskelbimo data
 
Projektiniai pasiūlymai/vizualizacijos
 
Kita/ papildoma informacija
Klaipėdos
valstybinio jūrų uosto pietinės uosto dalies,
Kairių g. 19, Klaipėda
2026-05-15
Vaizdinė informacija:
1, 2.
 
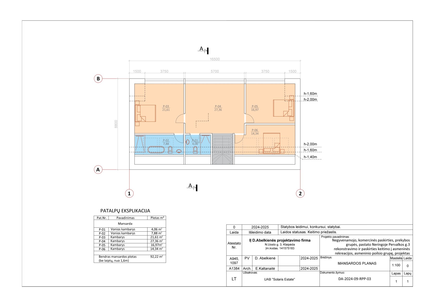
Informacija apie Negyvenamojo, komercinės paskirties, prekybos grupės, pastato Neringoje Pervalkos g. 3 rekonstravimo ir paskirties keitimo į asmeninės rekreacijos, asmeninio poilsio grupę, projekto projektinius pasiūlymus ir viešą svarstymą su visuomene
Pervalkos g. 3, Neringa
2026-03-05
Vaizdinė informacija: 1, 2, 3, 4, 5, 6.
 

Informacija apie Daugiabučių paskirties pastato, Ievos kalno g. 14A, Neringa kapitalinio remonto ir neįrengtos pastogės Nr. 11A patalpų paskirties keitimo į gyvenamąją projekto projektinius pasiūlymus ir viešą svarstymą su visuomene

Ievos kalno g. 14A, Neringa
2025-12-01
 
Informacija apie Pagalbinio ūkio paskirties pastato - ūkinio pastato (unikalus daikto numeris: 2391- 8000-1059) rekonstrukcijos, L. Rėzos g. 26a, Neringoje, projektinius pasiūlymus bei viešą svarstymą su visuomene
 
L. Rėzos g. 26a, Neringa
2025-10-27
 
Informacija apie Pastato - vienbučio gyvenamo namo (unikalus daikto numeris: 2391-8000-1015), vienbučių ir dvibučių pastatų
paskirties grupės, L. Rėzos g. 26a, Neringoje, rekonstrukcijos projekto projektinius pasiūlymus bei viešą svarstymą su visuomene 
L. Rėzos g. 26a, Neringa
2025-07-21
 
Informacija apie kito inžinerinio statinio saulės šviesos energijos elektrinės Purvynės g. 26, Neringa, Neringos sav., projekto projektinius pasiūlymus bei viešą svarstymą su visuomene

 

Purvynės g. 26, Neringa
2025-06-02
 

Informacija apie Poilsio paskirties pastato (7.13) un. Nr. 4400-4597-6983 Skruzdynės g. 2 Neringa, rekonstravimo projekto projektinius pasiūlymus bei viešą svarstymą su visuomene

Skruzdynės g. 2, Neringa
2025-05-07
 

Informacija apie Asmeninio poilsio paskirties pastato, Vėtrungių g. 362, Neringos m. projekto projektinius pasiūlymus bei viešą svarstymą su visuomene

Vėtrungių g. 362, Neringa
2025-02-24
Vaizdinė informacija: 1, 2, 3.
 

Informacija apie Maitinimo pastato paskirties keitimą į paslaugų paskirties pastatą su poilsio patalpomis Neringos sav., Neringos m., Žaliasis kel. 3, projekto projektinius pasiūlymus bei viešą svarstymą su visuomene

 
Žaliasis kel. 3, Neringa
2024-10-15
 
Informacija apie Miško kelio per Nidos girininkijos Kv. 116; 117;121 pritaikymo pėsčiųjų ir dviračių eismui, bei miško priešgaisrinei
apsaugai rekonstrukcijos projekto projektinius pasiūlymus bei viešą svarstymą su visuomene
Nidos girininkijos Kv. 116; 117;121
2024-10-10

PRITARTA

IS Nr. PSP-32-241030-00019

Pritarimo data: 2024-10-30

Informacija apie Sporto paskirties pastato, Vėtrungių g. 360, Neringa, statybos ir sandėliavimo paskirties pastato (un. Nr.
2399-1000-4015) rekonstravimo projekto projektinius pasiūlymus bei viešą svarstymą su visuomene
 
Vėtrungių g. 360, Neringa
2024-09-23

NEPRITARTA

IS Nr. PSP-32-241030-00020

Nepritarimo data: 2024-11-07

Informacija apie Poilsio paskirties pastato Preilos g. 9, Preilos gyv., Neringos m., Neringos sav., rekonstravimo projekto projektinius pasiūlymus bei viešą svarstymą su visuomene
 
Preilos g. 9, Preilos gyv., Neringa
2024-09-19

NEPRITARTA

IS Nr. PSP-32-241011-00014

Nepritarimo data: 2024-10-11

Informacija apie Poilsio paskirties pastato (7.13) un. Nr. 4400-4597-6983 Skruzdynės g. 2 Neringa, rekonstravimo projekto projektinius pasiūlymus bei viešą svarstymą su visuomene
Skruzdynės g. 2, Neringa
2024-09-18

NEPRITARTA

IS Nr. PSP-32-241024-00018

Nepritarimo data: 2024-10-24

Skruzdynės g. 2B, Neringa
2024-09-18

NEPRITARTA

IS Nr. PSP-32-241024-00017

Nepritarimo data: 2024-10-24

Informacija apie pastato - garažo su buitinėmis patalpomis 4G1p paskirties keitimo į poilsio paskirties pastatą E. A. Jonušo g. 5, Neringoje, paprastojo remonto aprašo projektinius pasiūlymus bei viešą svarstymą su visuoomene

E. A. Jonušo g. 5, Neringa
2024-09-09

NEPRITARTA

IS Nr. PSP-32-240928-00013

Nepritarimo data: 2024-10-03

Informacija apie pramonės paskirties pastato un. Nr. 239-4001-1015 Gintaro įl. g. 3, Neringa, rekonstravimo ir paskirties keitimo į paslaugų paskirtį su gyvenamosiomis patalpomis, projektinius pasiūlymus bei viešą svastymą su visuomene
Gintaro įl. g. 3, Neringa
2024-08-20

PRITARTA

IS Nr. PSP-32-240919-00011

Pritarimo data: 2024-09-19

Informacija apie daugiabučio gyvenamojo namo Kopų g. 1, Neringa kapitalinio remonto ir neįrengtos pastogės Nr. 6A patalpų paskirties keitimo į gyvenamąją, projektinius pasiūlymus bei viešą svastymą su visuomene

Kopų g. 1, Neringa 2024-08-14

Projektiniai pasiūlymai

Vaizdinė informacija

PRITARTA

IS Nr. PSP-32-240911-00010

Pritarimo data 2024-09-13

Informacija apie sandėliavimo paskirties pastato L. Rėzos g. 31, Neringa paskirties keitimo į kultūros paskirties pastatą kapitalinio remonto projektinius pasiūlymus bei viešą svarstymą su visuomene L. Rėzos g. 31, Neringa 2024-07-04

Projektiniai pasiūlymai

Vaizdinė informacija

PRITARTA

IS Nr. PSP-32-240910-00009

Pritarimo data: 2024-09-10;

NEPRITARTA

IS Nr. SPSP-32-240814-00004

Nepritarimo data 2024-08-14

 

INFORMACIJA APIE PARENGTUS POILSIO PASKIRTIES PASTATO SKRUZDYNĖS G. 2, NERINGOJE, KAPITALINIO REMONTO PROJEKTINIUS PASIŪLYMUS

INFORMACIJA APIE PARENGTUS GYVENAMOSIOS PASKIRTIES PASTATO SKRUZDYNĖS G. 6, NERINGOJE, KAPITALINIO REMONTO PROJEKTINIUS PASIŪLYMUS

INFORMACIJA APIE PARENGTUS POILSIO PASKIRTIES PASTATO L. RĖZOS G. 52A, NERINGOJE, REKONSTRAVIMO PROJEKTINIUS PASIŪLYMUS

INFORMACIJA APIE PARENGTUS ADMINISTRACINĖS PASKIRTIES PASTATO, GINTARO ĮLANKOS G. 1, NERINGA, NERINGOS SAV., REKONSTRAVIMO PROJEKTAS

INFORMACIJA APIE PARENGTUS DIRBTUVIŲ REKONSTRUKCIJOS Į PAGALBINIO ŪKIO PASKIRTIES PASTATĄ, L. RĖZOS G. 26 A, NERINGA, PROJEKTINIUS PASIŪLYMUS

INFORMACIJA APIE PARENGTUS ADMINISTRACINĖS PASKIRTIES PASTATO SU GYVENAMOSIOMIS PATALPOMIS, ADRESU VILŲ G. 5A, NERINGA, PROJEKTINIUS PASIŪLYMUS

INFORMACIJA APIE PARENGTUS GYVENAMOSIOS PASKIRTIES PASTATO REKONSTRAVIMO, PREILOS G. 21 NERINGOJE PROJEKTINIUS PASIŪLYMUS

INFORMACIJA APIE PARENGTUS MOKSLO PASKIRTIES PASTATŲ (un. Nr. 2395-3000-1029 ir un. Nr. 2395-3000-1018) IR PAGALBINIO ŪKIO PASTATO (un. Nr.2395-3000-1048) REKONSTRAVIMĄ, KEIČIANT PASKIRTĮ Į POILSIO, PERVALKOS G. 37, NERINGOJE,  PROJEKTO PROJEKTINIUS PASIŪLYMUS

INFORMACIJA APIE PRIVAŽIAVIMO KELIO NUO PĖSČIŲJŲ IR DVIRAČIŲ TAKO NIDOJE (E KATEGORIJA) UNIK. NR. 4400-1845-3366, PRIE MAITINIMO PASKIRTIES PASTATO, NIDOS – SMILTYNĖS PL. 7, NERINGA PROJEKTINIUS PASIŪLYMUS

INFORMACIJA APIE PARENGTUS HIDROTECHNINIO STATINIO - UOSTO UN. NR. 2399-8000-3017 ESAMŲ HIDROTECHNINIŲ STATINIŲ REKONSTRAVIMO, KAPITALINIO REMONTO, PASKIRTIES KETIMO Į SUSISIEKIMO KOMUNIKACIJŲ (VANDENS UOSTO) STATINIUS, SUSISIEKIMO KOMUNIKACIJŲ (VANDENS UOSTO) STATINIŲ IR TRANSPORTO PASKIRTIES PASTATŲ NAUJOS STATYBOS, ATSTATYMO L. RĖZOS G. 1D, NERINGA PROJEKTO PROJEKTINIUS PASIŪLYMUS

INFORMACIJA APIE PARENGTUS PASTATO - ADMINISTRACINIS SU GYVENAMOSIOMIS PATALPOMIS, ADRESU VILŲ G. 5A, NERINGA, REKONSTRAVIMO TECHNINIO PROJEKTO PROJEKTINIUS PASIŪLYMUS

INFORMACIJA APIE PARENGTUS MOKSLO PASKIRTIES PASTATŲ - VGTU (VILNIUS TECH) PRAKTIKŲ BAZĖS LABORATORINIŲ KORPUSŲ NR. 1 IR NR. 2, ŽALIASIS KELIAS NR. 6, NERINGOS SAV., NERINGOS M., REKONSTRAVIMO PROJEKTO PROJEKTINIUS PASIŪLYMUS

INFORMACIJA APIE PARENGTUS ADMINISTRACINĖS PASKIRTIES PASTATO TAIKOS G. 5, NERINGOJE DALIES PATALPŲ UN. NR. 2399-3000-5010:0004, 2399-3000-5010:0003, 2399-3000-5010:0005 REKONSTRAVIMO PROJEKTO (A LAIDA) PROJEKTINIUS PASIŪLYMUS

INFORMACIJA APIE PARENGTUS PAGALBINIO ŪKIO PASKIRTIES PASTATO SU GYVENAMOSIOMIS PATALPOMIS PERVALKOS G. 10, NERINGOS M., DALIES PATALPŲ PASKIRTIES KEITIMO IR REKONSTRAVIMO PROJEKTINIUS PASIŪLYMUS

INFORMACIJA APIE DAUGIABUČIO GYVENAMOJO NAMO DALIES ADRESU PERVALKOS G. 8A, NERINGA REKONSTRUKCIJOS PROJEKTO PROJEKTINIUS PASIŪLYMUS, FORMUOJANT NAUJUS KADASTRINIUS OBJEKTUS IR KEIČIANT PATALPŲ PASKIRTĮ Į MAITINIMO PASKIRTIES PATALPAS IR VIEŠĄ SVARSTYMĄ SU VISUOMENE.

INFORMACIJA APIE DAUGIABUČIO GYVENAMOJO NAMO DALIES ADRESU PERVALKOS G. 8A, NERINGA REKONSTRUKCIJOS PROJEKTO PROJEKTINIUS PASIŪLYMUS, FORMUOJANT NAUJUS KADASTRINIUS OBJEKTUS IR KEIČIANT PATALPŲ PASKIRTĮ Į MAITINIMO PASKIRTIES PATALPAS IR VIEŠĄ SVARSTYMĄ SU VISUOMENE.

INFORMACIJA APIE PARENGTUS DEGALINĖS OPERATORINĖS SU PREKYBOS PATALPOMIS IR AUTOMOBILIŲ APTARNAVIMO (PRIEŽIŪROS) CENTRU REKONSTRAVIMO, NIDOS-SMILTYNĖS PL. 6, NERINGA, PROJEKTO PROJEKTINIUS PASIŪLYMUS IR VIEŠĄ SVARSTYMĄ SU VISUOMENE.

INFORMACIJA APIE PARENGTUS KITOS PASKIRTIES INŽINERINIO STATINIO - LAUKO KREPŠINIO AIKŠTELĖS L.RĖZOS G. 23A, NERINGA, SUPAPRASTINTOS  STATYBOS PROJEKTO PROJEKTINIUS PASIŪLYMUS

INFORMACIJA APIE PARENGTUS KITOS PASKIRTIES INŽINERINIŲ STATINIŲ ŽEMĖS SKLYPE (KAD. NR. 2301-0001:204) NAGLIŲ G. 18K, NERINGA, STATYBOS PROJEKTO PROJEKTINIUS PASIŪLYMUS

INFORMACIJA APIE PARENGTUS ADMINISTRACINIO PASTATO 1B2P IR GAMYBINIO PASTATO 2P1Ž ADRESU NAGLIŲ G. 18, NERINGA PASKIRTIES KEITIMO Į VIEŠBUTĮ, REKONSTRAVIMO PROJEKTO PROJEKTINIUS PASIŪLYMUS

INFORMACIJA APIE PARENGTUS KITOS PASKIRTIES STATINIO-AUTOMOBILIŲ SAUGYKLOS, ESANČIOS TAIKOS G. 39 NERINGOJE REKONSTRAVIMO IR SUSISIEKIMO KOMUNIKACIJŲ - E. A. JONUŠO GATVĖS REKONSTRAVIMO, ĮRENGIANT AUTOBUSŲ STOVĖJIMO VIETAS IR PĖSČIŲJŲ TAKĄ (ŠALIGATVĮ), NERINGOJE, NERINGOS SAV., PROJEKTINIUS PASIŪLYMUS

INFORMACIJA APIE PĖSČIŲJŲ IR DVIRAČIŲ TAKO SMILTYNĖ–NIDA RUOŽO NUO 15,576 IKI 31,232 KM REKONSTRAVIMO PROJEKTINIUS PASIŪLYMUS

INFORMACIJA APIE PĖSČIŲJŲ IR DVIRAČIŲ TAKO SMILTYNĖ–NIDA RUOŽŲ NUO 0,010 IKI 2,029 KM, NUO 0,011 IKI 1,829 KM, NUO 31,249 IKI 34,050 KM, NUO 34,074 IKI 34,217 KM REKONSTRAVIMO PROJEKTINIUS PASIŪLYMUS

INFORMACIJA APIE PARENGTUS SANDĖLIAVIMO PASKIRTIES PASTATO-SANDĖLIO, PURVYNĖS G. 77, NERINGA REKONSTRAVIMO IR PASKIRTIES KEITIMO Į POILSIO PASKIRTIES PASTATĄ PROJEKTINIUS PASIŪLYMUS

INFORMACIJA APIE PARENGTUS FERMOS PURVYNĖS G. 73, NERINGA IR ŪKINIO PASTATO PURVYNĖS G. 75, NERINGA, ESANČIŲ SKLYPE PURVYNĖS G. 73, NERINGA REKONSTRAVIMO Į POILSIO NAMUS PROJEKTINIUS PASIŪLYMUS

INFORMACIJA APIE PARENGTUS GAMYBOS PASKIRTIES PASTATO IR POILSIO PASKIRTIES PASTATO SKRUZDYNĖS G. 2 NERINGA REKONSTRAVIMO PROJEKTO Į POILSIO PASKIRTIES PASTATĄ PROJEKTINIUS PASIŪLYMUS

INFORMACIJA APIE ADMINISTRACINIO PASTATO (UNIKALUS NR. 2399-5000-2028) STATYBOS UŽBAIGIMO, KEIČIANT PASTATO PASKIRTĮ Į POILSIO, PURVYNĖS G. 81A, NERINGA PROJEKTINIUS PASIŪLYMUS

INFORMACIJA APIE PARENGTUS TAIKOS GATVĖS DALIES NUO KOORDINUOTŲ TAŠKŲ 1053 IKI 1058, NUO 1511 IKI 1516 IR LAISVOJE VALSTYBINĖJE ŽEMĖJE, GRETA ŽEMĖS SKLYPO TAIKOS G. 32A, NERINGA, REKONSTRAVIMO PROJEKTO PROJEKTINIUS PASIŪLYMUS

INFORMACIJA APIE PĖSČIŲJŲ IR DVIRAČIŲ TAKO SMILTYNĖ–NIDA RUOŽO NUO 2,956 IKI 15,567 KM REKONSTRAVIMO PROJEKTO PROJEKTINIUS PASIŪLYMUS IR VIEŠĄ SVARSTYMĄ SU VISUOMENE

INFORMACIJA APIE GYVENAMOJO NAMO SU KAVINĖS IR PARDUOTUVĖS PATALPOMIS PREILOS G. 15, NERINGA REKONSTRAVIMO IR PASKIRTIES KEITIMO Į DVIBUTĮ GYVENAMĄJĮ NAMĄ PROJEKTINIUS PASIŪLYMUS

INFORMACIJA APIE PARENGTUS VANDENS UOSTO INŽINERINIO STATINIO (VALČIŲ NULEIDIMO ĮRENGINIO-SLIPO) STATYBOS SUPAPRASTINTO PROJEKTO, PURVYNĖS G., NERINGA PROJEKTINIUS PASIŪLYMUS

INFORMACIJA APIE PARENGTUS PERVALKOS PRIEPLAUKOS (KOMERCINĖS) ĮRENGIMO, ATLIEKANT PERVALKOS KRANTINĖS, UNIKALUS NR. 4400-3115-9649, DALIES (K5-PIRSO, b1- KRANTINĖS DANGOS, b9-PIRO DANGOS) PAPRASTOJO REMONTO PROJEKTINIUS PASIŪLYMUS

INFORMACIJA APIE PARENGTUS PASTATO KLUBO (UNIK.NR. 2393-0001-3231) REKONSTRAVIMO Į DAUGIABUTĮ GTVENAMĄJĮ PASTATĄ BEI DAUGIABUČIŲ GYVENAMŲJŲ NAMŲ IR VIENBUČIO GYVENAMOJO NAMO ŽEMĖS SKLYPE KAD. NR. 2301/0001:225, PAMARIO G. 46,  NERINGA STATYBOS PROJEKTINIUS PASIŪLYMUS

INFORMACIJA APIE PARENGTUS POILSIO PASKIRTIES PASTATO KALNO G. 36D, NERINGA., REKOSNTRAVIMO PROJEKTINIUS PASIŪLYMUS

INFORMACIJA APIE NUMATOMĄ SUSISIEKIMO KOMUNIKACJOS - PURVYNĖS GATVĖS ATKARPOS TARP KOORDINUOTŲ TAŠKŲ NR. 151-162 REKONSRAVIMO PROJEKTĄ

INFORMACIJA APIE PARENGTUS POILSIO PASKIRTIES PASTATO PURVYNĖS G. 2B, NERINGA STATYBOS PROJEKTINIUS PASIŪLYMUS

INFORMACIJA APIE PARENGTUS DAUGIABUČIO GYVENAMOJO PERVALKOS G. 8A, NERINGA NAMO DALYJE (BUTE PERVALKOS 8A-1, NERINGA, UNIKALUS NR.2398-6000-5018:001) KAPITALINIO REMONTO, FORMUOJANT NAUJUS KADASTRINIUS OBJEKTUS IR KEIČIANT PATALPŲ PASKIRTĮ Į MAITINIMO PASKIRTIES PATALPAS, PROJEKTINIUS PASIŪLYMUS